最新!【町家レジデンスイン よろず葉】
人気オススメのお部屋をチェック!

京都「祇園」「八坂神社」徒歩圏内、「六波羅蜜寺」すぐ近く。
京の四季が織りなす風情が息づく町家宿。

このページは、アフィリエイトリンクを含んでいます。

よろず葉 完全プライベートな一棟貸し町家

お部屋詳細

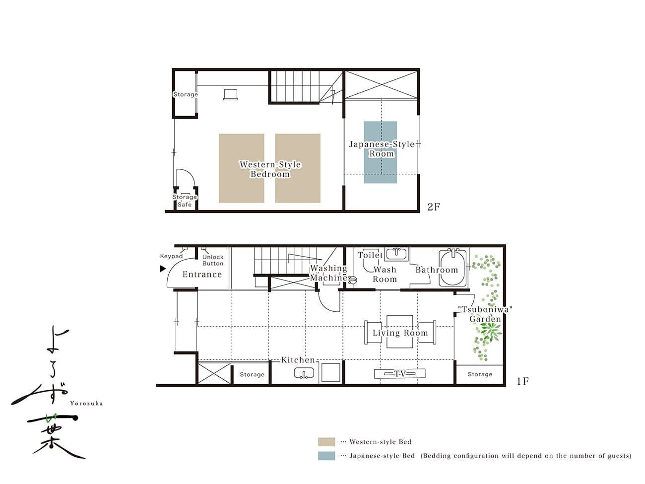
古民家である「町家」に、リノベーションを施した1棟貸切り宿泊施設です
1階:リビングダイニング、テレビ、キッチン、浴室、洗面、トイレ、坪庭、洗濯機
2階:和洋室、和室
寝具:セミダブルベッド2台、布団1組
※部屋・数は宿泊人数や状況によって変動致します。
【キッチン】
ご自身のお家のように調理していただけるよう、豊富に取り揃えております。
京都の珈琲店監修のオリジナル「MACHIYA コーヒー」
IH・冷蔵庫・ケトル・電子レンジ・トースター・炊飯器
調理器具・食器類・ふきん・洗剤・スポンジ・緑茶・紅茶
【その他】
アイロン、洗濯機、部屋干し器具・ハンガー
■FREE Wi-Fi完備
■充実のオリジナル「MACHIYA アメニティ」
シャンプー・コンディショナー・ボディソープ等
※最大3名様+添い寝2名様(5歳以下のお子様※お食事布団無し)までご利用いただけます。
※添い寝ご希望のお客様はご予約ページにて質問事項にご記入をお願い致します。
※ご不明点等ございましたら、お気軽にお問い合わせくださいませ。
TEL : 050-3786-2009
MAIL : info@machiya-inn-japan.com

外観

間取り

間取り

タイプ 一棟貸し
広さ