最新!【美山FUTON&Breakfast】
人気オススメのお部屋をチェック!

美山FUTON&Breakfastは、かやぶき民家一棟を”1日1組様限定”で貸し切れる宿泊スタイルの施設でございます。都会では味わえない静けさと、広々とした空間をご体感ください。

このページは、アフィリエイトリンクを含んでいます。

KAYA Villa 最大7名様

お部屋詳細

静かにゆったり過ごせる隠れ家です。 
清潔感あふれるモダンな内装はまるで自分の家のような居心地の良さを感じさせます。
ゆったり過ごして頂いたり、美山をアクティブに動き回る拠点に、ご自由なスタイルでご利用頂けます。
檜風呂も好評です。

KAYAVilla間取り図

タイプ 一棟貸し
広さ 75.00〜

かやぶき古民家 美十八-mitoya- 最大7名様

お部屋詳細

都会の喧騒から逃れ、時間の束縛からも解放される。 
どこか懐かしさを感じさせる自慢の縁側に腰掛けながら、なにもないことの「癒し」を感じてください。
館内の囲炉裏を囲んでのご夕食もお楽しみいただけます。素朴な和の空間で、広々とおくつろぎください。
寝具につきましてはセミダブルベッド×2、お布団を5セットご用意しております。
お宿からは標高900m級の長老ヶ岳へ徒歩でのぞむことができます。
ご滞在中は朝の散歩や、トレッキング、ハイキングもお勧めです。

美十八間取り図

タイプ 一棟貸し
広さ 100.00〜

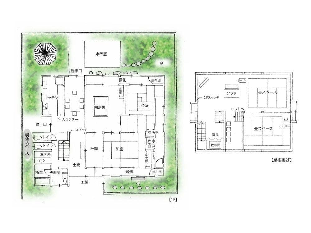
かやぶき古民家 本館  最大10名様

お部屋詳細

畳に布団を敷く。土間から囲炉裏に上がる。
日本の伝統的な かやぶき古民家を贅沢に一棟貸し切ってお過ごしいただけます。
かやぶき民家は風通しがとても良いため、夏は特に涼しく、自然の涼風で快適に過ごすことができます。
寒い季節は、館内の囲炉裏に火を入れてご使用いただけます。
また雨が降った時は、かやぶき屋根が音を吸収してくれますので、とても静かです。
一階の和室だけでなく、元来、物置になる屋根裏を改装し、2階のお部屋でもお休みいただけるつくりです。
水回りは最新の設備に整えておりますので、古き良き日本の暮らしを快適に体験することができます。
※最大10名様までご予約いただけます。
10名様の場合、当施設までお問い合わせください。

本館間取り図

タイプ 一棟貸し
広さ 250.00〜

美山EISA 最大8名様

お部屋詳細

今年度よりオープンしました新しい形のお宿です。
古民家の中にはミニバーやビールサーバー等が併設しており、お酒を楽しめる大人の隠れ家としてご利用可能。また土間の部分が大変広いため施設内でワンちゃんと一緒にお過ごしいただけます。 お風呂も自慢の一つです!

夕暮れのEISA

広々とした客室

自慢のアイランドキッチン

タイプ 一棟貸し
広さ 100.00〜

古民家 百日紅 最大15名様

お部屋詳細

樹齢300年の百日紅(さるすべり)に見守られながら、四季を楽しめる庭が自慢のお宿です。
大人数用のバーベキュースペースがご利用でき、お風呂も広々。都会の喧騒からしばし解放され、大自然の中でご友人同士やご家族同士で過ごしたいという方にピッタリのお宿です。一日一組限定で丸々一棟貸しきることができますので
誰にも邪魔されずあなただけの時間を過ごして頂けます。

タイプ 一棟貸し
広さ 181.53〜