最新!【翠巌】
人気オススメのお部屋をチェック!

お食事も、温泉も、寛ぐ場所も、すべてが備わった客室は
ゆったりとした間取りの7室すべてが特別室です。

このページは、アフィリエイトリンクを含んでいます。

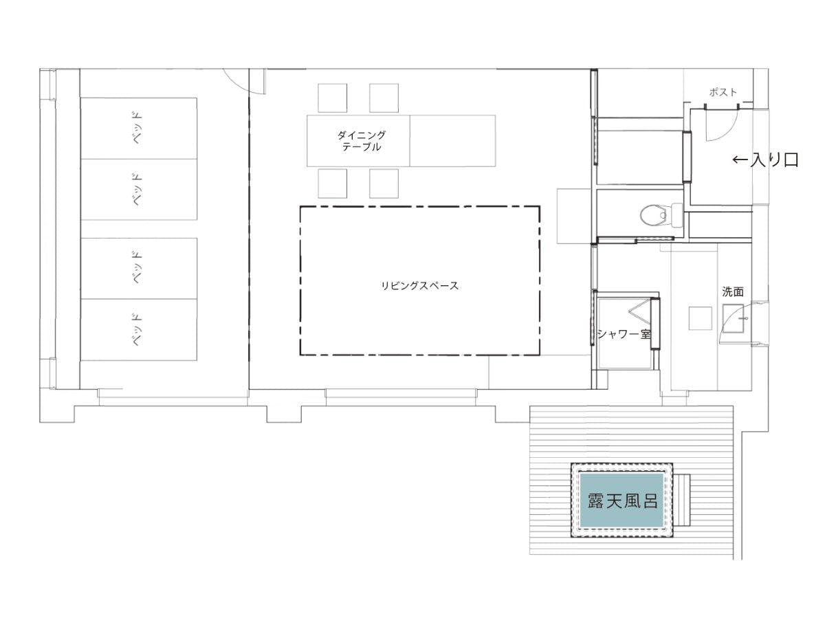
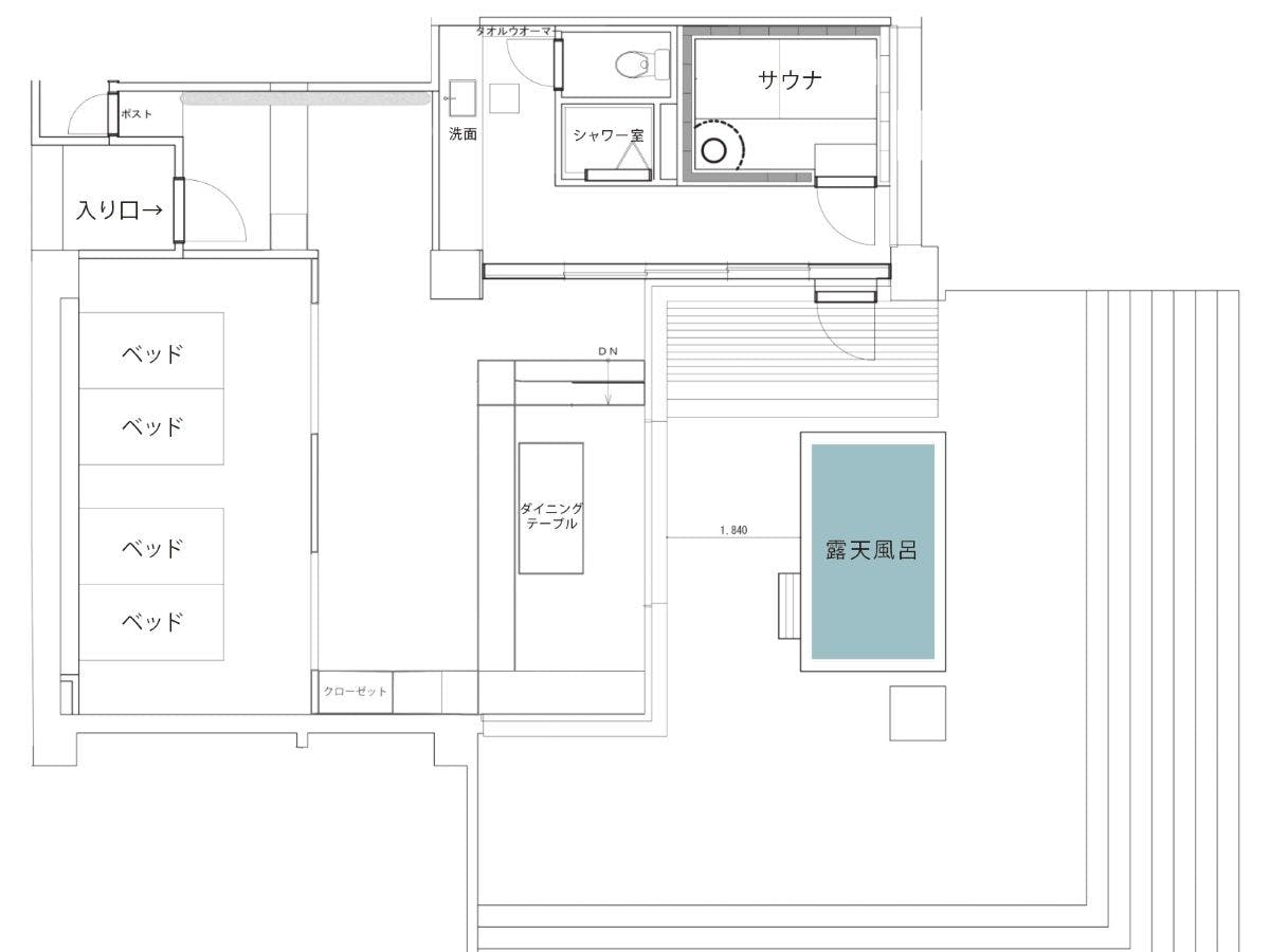
【翠巌スイート】露天風呂&サウナ付客室「青海波」101号室

お部屋詳細

正面に渓谷を見据える、サウナと寝湯付き露天風呂を備えたお部屋
<101号室 青海波(せいがいは)>
1階/4名様までご利用いただけます
正面に渓谷を見据え、樹木に包まれたような露天風呂が特徴のお部屋です。
露天風呂には温泉を長時間お愉しみいただけるよう、寝湯を備え付けました。
サウナヒーターにはHARVIA製CILINDROを導入し、渓谷や木々が織りなす四季のうつろいを眺めながらセルフロウリュもお愉しみいただけます。
※お部屋に調理器具などはございません。
※館内には段差がございます。エレベーターはございませんのでご承知おきくださいますようお願いいたします。
※お子様のご宿泊は小学生以上より承っております。
※全室禁煙でございます。

101号室「青海波」

「青海波」101号室

101号室「青海波」

タイプ ツイン
広さ 76.00〜

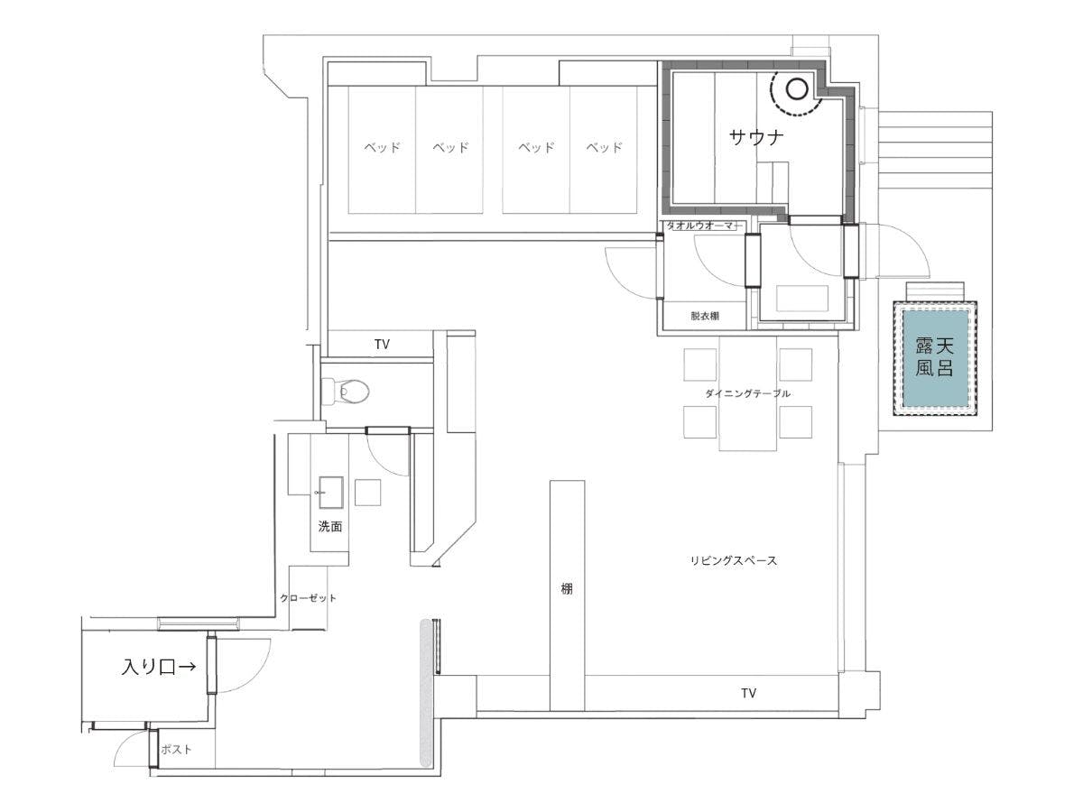
【翠巌スイート】露天風呂&サウナ付客室「東遊」102号室

お部屋詳細

サウナと寝湯付き露天風呂を備え、シアタールームとしてもご利用いただけるお部屋
<102号室 東遊(あずまあそび)>
1階/4名様までご利用いただけます
リビングからシームレスにつながるデッキに寝湯付き露天風呂を備えた、「翠巌」で最上位に位置するお部屋です。
サウナヒーターにはHARVIA製CILINDROを導入し、渓谷や木々が織りなす四季のうつろいを眺めながらセルフロウリュもお愉しみいただけます。
130インチ以上のプロジェクターを完備し、迫力ある映像を愉しめるシアタールームとしてもご利用いただけます。
客室内には緩やかなハシゴを使うスペースもございます。お足元に十分ご注意くださいませ。
※お部屋に調理器具などはございません。
※館内には段差がございます。エレベーターはございませんのでご承知おきくださいますようお願いいたします。
※お子様のご宿泊は小学生以上より承っております。
※全室禁煙でございます。

102号室「東遊」

「東遊」102号室

102号室「東遊」

タイプ ツイン
広さ 126.00〜

【翠巌スイート】露天風呂付客室「青柳」103号室

お部屋詳細

寝湯付き露天風呂と広めのデッキで外でも寛げるお部屋
<103号室 青柳(あおやなぎ)>
1階/4名様までご利用いただけます
露天風呂の周りに広めのウッドデッキがあり、外でものんびりと寛げるお部屋です。
露天風呂には長時間温泉をお愉しみいただけるよう寝湯を備え付けております。
お部屋からは豊平川を眺められ、豊平川をイメージして一直線に配した軟石や、土壁のアート作品、ダイニングテーブルなどを設えています。
舞鶴の瀞が色鮮やかに染まる紅葉の時期もおすすめです。
※お部屋に調理器具などはございません。
※館内には段差がございます。エレベーターはございませんのでご承知おきくださいますようお願いいたします。
※お子様のご宿泊は小学生以上より承っております。
※全室禁煙でございます。

「青柳」103号室

「青柳」103号室

103号室「青柳」

タイプ ツイン
広さ 84.00〜

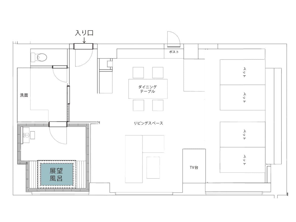
【パノラマスイート】展望風呂付客室「倭舞」201号室

お部屋詳細

展望風呂を備えた、最も景色の良いパノラマビューのお部屋
<201号室 倭舞(やまとまい)>
中2階/2名様までご利用いただけます
翠巌の中で最も眺めが良い半円状の形をしたパノラマビューのお部屋で、展望風呂からも眼下に川の流れを見ることができます。
リビングの窓は高さがあって開放的で、春には桜、秋には渓谷を彩る紅葉や舞鶴の瀞を広く見渡せます。
視点と樹木の背丈が同じくらいの高さとなるため、お部屋が宙に浮いているような独特な感覚を味わえます。
※お部屋に調理器具などはございません。
※館内には段差がございます。エレベーターはございませんのでご承知おきくださいますようお願いいたします。
※お子様のご宿泊は小学生以上より承っております。
※全室禁煙でございます。

201号室「倭舞」

「倭舞」201号室

201号室「倭舞」

タイプ ツイン
広さ 85.00〜

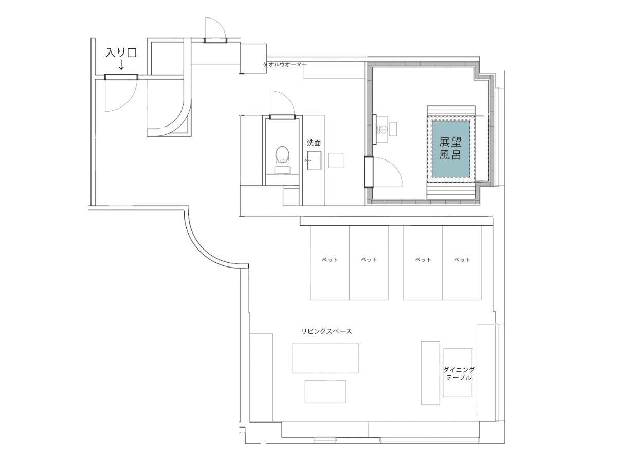
【スイート】展望風呂付客室「紅葉賀」301号室

お部屋詳細

展望風呂を備えた、リビングが最も広いお部屋
<301号室 紅葉賀(もみじのが)>
2階/4名様までご利用いただけます
お部屋の中心に配した段差のあるテーブルが特徴的なお部屋です。
ご夫婦やお友達とテーブルで遊んだり、ご飯を食べたり、自由な発想で思い思いにお過ごしください。
リビングは翠巌の中で一番広く、開放的なお部屋からは渓谷を望めます。
お風呂は展望風呂タイプで眼下に川の流れを見ることができ、浴室内はゆったりとした造りです。
※お部屋に調理器具などはございません。
※館内には段差がございます。エレベーターはございませんのでご承知おきくださいますようお願いいたします。
※お子様のご宿泊は小学生以上より承っております。
※全室禁煙でございます。

301号室「紅葉賀」

「紅葉賀」301号室

301号室「紅葉賀」

タイプ ツイン
広さ 82.00〜

【コーナースイート】展望風呂付客室「胡蝶」302号室

お部屋詳細

展望風呂を備えた、舞鶴の瀞の渓谷を望めるコーナールーム
<302号室 胡蝶(こちょう)>
2階/4名様までご利用いただけます
眺望の素晴らしいコーナールームは角部屋のため南と東に窓があり、お部屋からは白井川と豊平川が合流する地点と舞鶴の瀞の渓谷を眺められます。
展望風呂でありながらも浴室内はゆったりとした造りで、湯船からも渓谷の様子を眺められます。
※お部屋に調理器具などはございません。
※館内には段差がございます。エレベーターはございませんのでご承知おきくださいますようお願いいたします。
※お子様のご宿泊は小学生以上より承っております。
※全室禁煙でございます。

302号室「胡蝶」

「胡蝶」302号室

302号室「胡蝶」

タイプ ツイン
広さ 80.00〜

【スイート】展望風呂付客室「秋風楽」303号室

お部屋詳細

展望風呂を備えた、札幌軟石を意匠に用いたお部屋
<303号室 秋風楽(しゅうふうらく)>
2階/4名様までご利用いただけます
ベッドのヘッドボードにあたる壁に札幌軟石を配したお部屋です。
窓の外には豊平川が流れ、お部屋からも浴室からも樹木の間から渓谷を望めます。
お風呂は展望風呂タイプながら、浴室内はゆったりとした造りです。
※お部屋に調理器具などはございません。
※館内には段差がございます。エレベーターはございませんのでご承知おきくださいますようお願いいたします。
※お子様のご宿泊は小学生以上より承っております。
※全室禁煙でございます。

303号室「秋風楽」

「秋風楽」303号室

303号室「秋風楽」

タイプ ツイン
広さ 84.00〜