最新!【HOTEL CLAD】
人気オススメのお部屋をチェック!

御殿場プレミアムアウトレットのエリア内に立地したホテル。富士山の絶景と自家源泉が楽しめます。※「全国旅行支援」不参加のホテルです。

このページは、アフィリエイトリンクを含んでいます。

富士ビューダブル

お部屋詳細

富士山側の眺望をお楽しみいただけるダブルルームです。角部屋のため、静かにお過ごしになりたい場合も安心です。お天気が良ければ、大きな窓から雄大な富士の姿がご覧いただけます。
※お部屋はシャワーブースのみです(バスタブはございません)

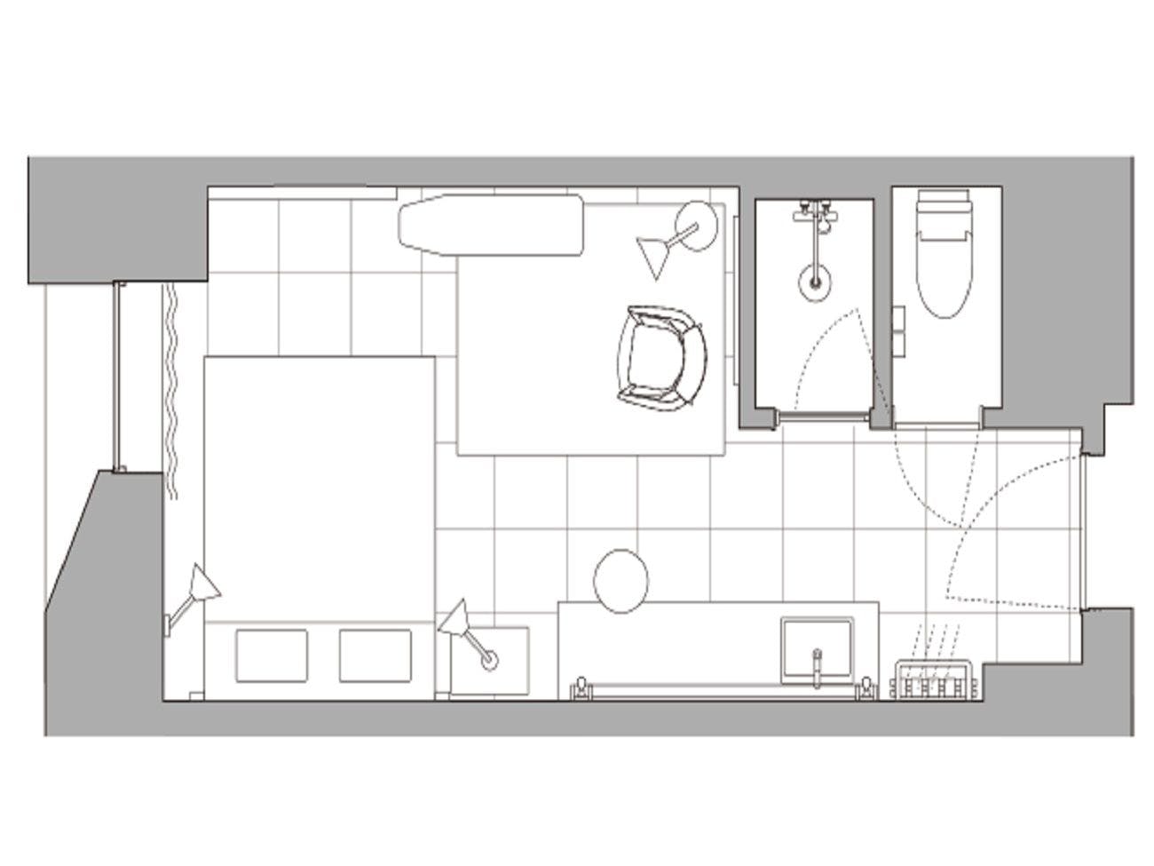
富士ビューダブルルーム

ダブルルーム間取り(イメージ)

タイプ ダブル
広さ 23.00〜

ダブル(森林側)

お部屋詳細

森林側に位置するダブルルーム。お部屋の窓は大きめのため、小スペースながらも明るく、また和モダンな作りとなっています。
※お部屋はシャワーブースのみです(バスタブはございません)

ダブルルーム(森林側)

ダブルルーム間取り(イメージ)

タイプ ダブル
広さ 23.00〜

富士ビューツイン

お部屋詳細

富士山側に位置するツインルームです。大きく作られた窓からは、雄大な富士山が目の前に広がり、開放感のあるお部屋でございます。
※お部屋はシャワーブースのみです(バスタブはございません)

富士ビューツインルーム

富士ビューツイン3名利用

ツインルーム間取り(イメージ)

タイプ ツイン
広さ 23.00〜

富士ビューツイン(3名利用)

お部屋詳細

富士山側に位置するツインルームです。大きく作られた窓からは、雄大な富士山が目の前に広がり、開放感のあるお部屋でございます。3名様でご利用が可能です。
※お部屋はシャワーブースのみです(バスタブはございません)

富士ビューツイン3名利用

ツインルーム間取り(イメージ)

タイプ ツイン
広さ 23.00〜

ツイン(森林側)

お部屋詳細

森林側に位置するツインルームで、ベッド側が小上がりスタイルとなっております。ベッドはハリウッドスタイルのため、通常の広さよりも少し広めに感じられる作りとなっております。
※お部屋はシャワーブースのみです(バスタブはございません)

ツインルーム(森林側)

ツインルーム(森林側)(3名利用)

ツインルーム間取り(イメージ)

タイプ ツイン
広さ 23.00〜

ツイン(3名利用)(森林側)

お部屋詳細

森林側に位置するお部屋です。3名様でご利用いただけますので、ご家族やご友人とご宿泊いただけます。
※お部屋はシャワーブースのみです(バスタブはございません)

ツインルーム(森林側)(3名利用)

ツインルーム間取り(イメージ)

タイプ ツイン
広さ 23.00〜

スーペリア(森林側)

お部屋詳細

森林側に位置し、4名様でもご利用いただけるよう広めのタイプとなっております。最上階にあるため、箱根の山や美しい緑の眺望をお楽しみいただけます。
※お部屋はシャワーブースのみです(バスタブはございません)

スーペリアルーム(森林側)

スーペリアルーム間取り(イメージ)

タイプ フォース
広さ 33.30〜 35.90

富士ビューデラックスツイン

お部屋詳細

上層階にあり、眺望も最高の当ホテル一番の特別室。大きく作られた窓からは、雄大な富士山が目の前に広がり、開放感のあるお部屋でございます。4名様までご利用可能ですので、ご家族やお友達同士でのご利用にもお薦めです。

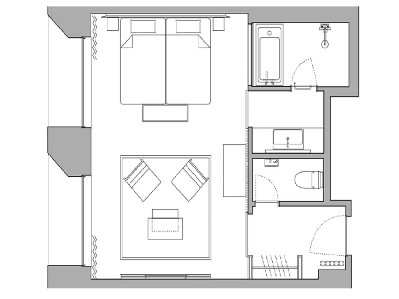
富士ビューデラックスツインルーム

富士ビューデラックスツイン(イメージ)

タイプ フォース
広さ 46.00〜

ブルックリンルーム

お部屋詳細

【客室名称】
ブルックリンルームwith journal standard Furniture
【客室紹介】
BAYCREW'S GROUPが展開するjournal standard Furnitureとコラボレーションしたお部屋。 同グループのjournal standard Furnitureが展開する家具を使用し、同ブランドがテーマにしているアメリカ東海岸のブルックリン地区にある古いロフトをリノベーションしたような空間としました。ホテルという非日常の中で、友人宅のようなラフな質感も感じられるインテリアとし、落ち着いた空間を演出しています。
【企業紹介】
journal standard Furniture・ACME Furnitureとは
ファッションを軸に衣食住美のライフスタイル全般を手がけるBAYCREW'S GROUPが展開するインテリアカンパニー。ファッションブランドJOURNAL STANDARDのインテリアブランド「journal standard Furniture」、1983年の創業以来、アメリカン・ヴィンテージ ファニチャーを今に伝える「ACME Furniture」を中心に、時計ブランド「HIROB」、アイウェアブランド「EYETHINK HIROB」を展開する。

ブルックリンルーム

ブルックリンルーム間取り(イメージ)

タイプ ツイン
広さ 46.00〜

富士ビューデラックスダブル

お部屋詳細

富士ビューの眺望で、ダブルベッドの広いお部屋です。
晴れた日には大きな窓から雄大な富士山の姿や御殿場の街並みをご覧いただけます。

富士ビューデラックスダブルルーム

富士ビューデラックスダブル(イメージ)

タイプ ダブル
広さ 46.00〜

ファッションルーム

お部屋詳細

【お部屋名称】
ファッションルームwith journal standard Furniture
【客室紹介】
BAYCREW'S GROUPが展開するjournal standard Furnitureとコラボレーションしたお部屋。 隣接する御殿場プレミアムアウトレットでショッピングをした洋服を、存分に楽しむことができるお部屋。買ってきた服に着替えて思わずポーズをとってしまいたくなるような大きな鏡、モデルになったような気分になれるスタジオのような設え、最新のアイロンやスチーマーなどの洋服用の家電が完備され、まるでショップやスタジオを貸しきっているような気分に。
ベッドの壁面にある印象的なアートワークはアーティスト・神山 隆二氏がこの部屋で書き下ろした作品。
※お部屋はシャワーブースのみです。
【企業紹介】
journal standard Furniture・ACME Furnitureとは
ファッションを軸に衣食住美のライフスタイル全般を手がけるBAYCREW'S GROUPが展開するインテリアカンパニー。ファッションブランドJOURNAL STANDARDのインテリアブランド「journal standard Furniture」、1983年の創業以来、アメリカン・ヴィンテージ ファニチャーを今に伝える「ACME Furniture」を中心に、時計ブランド「HIROB」、アイウェアブランド「EYETHINK HIROB」を展開する。

ファッションルーム(森林側)

ファッションルーム間取り(イメージ)

タイプ ダブル
広さ 23.00〜

CLASSIC USA ROOM

お部屋詳細

【客室名称】
CLASSIC USA ROOM with ACME Furniture
【客室紹介】
BAYCREW'S GROUPが展開するACME Furnitureとコラボレーションしたお部屋。
壁面は深いグリーンを基調とし、カジュアルな中に上品な重厚さやクラシカルな風合いをもたせ、部屋全体に統一感を演出。家具には無垢材やレザー素材など、それぞれの素材を際立たせながらも、周辺の景色と家具を対比させることで互いの存在感を主張させます。ベッドヘッドからご覧いただける自然豊かな景色との調和を考えた作りの部屋となっています。
※お部屋はシャワーブースのみです(バスタブはございません)
【企業紹介】
journal standard Furniture・ACME Furnitureとは
ファッションを軸に衣食住美のライフスタイル全般を手がけるBAYCREW'S GROUPが展開するインテリアカンパニー。ファッションブランドJOURNAL STANDARDのインテリアブランド「journal standard Furniture」、1983年の創業以来、アメリカン・ヴィンテージ ファニチャーを今に伝える「ACME Furniture」を中心に、時計ブランド「HIROB」、アイウェアブランド「EYETHINK HIROB」を展開する。

CLASSIC USA ROOM

クラッシックUSA間取り(イメージ)

タイプ ダブル
広さ 23.00〜