最新!【お宿 いけがみ】
人気オススメのお部屋をチェック!

家族で営む全6室の庵
山里のどこか懐かしい田舎景色の温もりに包まれながら
ご夫婦、恋人、友人、親子など、大切な方と
流麗なるひと時をお過ごしいただく事が当館の役割です

このページは、アフィリエイトリンクを含んでいます。

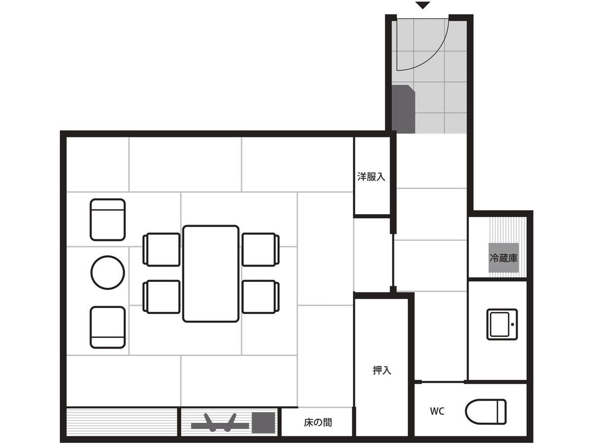
和室12.5畳(1階/寝具お布団/禁煙)

お部屋詳細

【2014年OPEN】
■ゆったりとした純和室
■全室禁煙 ■お子様○(電話受付のみ)
■1階 ■畳12.5帖(寝具は布団)
■安眠マットレス ■空気清浄機
■WiFi ■Netflix(無料映画) ■Alexa(Aiスピーカー)
■全室部屋風呂なし
【思ってた宿と違うとならないようお伝えしたい大切な事 】
当館にある2つの大浴場は、それぞれが貸切風呂となり、男女別の浴場はございません
2つの貸切風呂を6組の皆さまでご利用いただく為、場合によっては待ち時間が発生いたします
好きな時間に入浴する事ができないと不快の念をお掛けする場合がございますので予めご了承ください
<周辺観光>
・黒部峡谷鉄道トロッコ電車 … 車47分
・立山黒部アルペンルート( 立山駅 ) … 車66分
・魚津水族館&ミラージュランド … 車20分
・海の駅「蜃気楼」…車20分

103 葵 1階の和室12.5畳

103 葵 1階の和室12.5畳

タイプ 和室
広さ 37.00〜

和モダン12畳(2階/ツインベッド/禁煙)

お部屋詳細

【2014年OPEN】
■床座の和モダンルーム ■全室禁煙 ■お子様×
■2階(エレベーターはありません)
■畳6帖+ベッド間(3人目お布団)
■シモンズ社製ベッド ■空気清浄機
■WiFi ■Netflix(無料映画) ■Alexa(Aiスピーカー)
■全室部屋風呂なし
【思ってた宿と違うとならないようお伝えしたい大切な事 】
当館にある2つの大浴場は、それぞれが貸切風呂となり、男女別の浴場はございません
2つの貸切風呂を6組の皆さまでご利用いただく為、場合によっては待ち時間が発生いたします
好きな時間に入浴する事ができないと不快の念をお掛けする場合がございますので予めご了承ください
<周辺観光>
・黒部峡谷鉄道トロッコ電車 … 車47分
・立山黒部アルペンルート( 立山駅 ) … 車66分
・魚津水族館&ミラージュランド … 車20分
・海の駅「蜃気楼」…車20分

春には桜を愛でる風雅なお部屋

202 桜 2階の和モダン12畳

タイプ 和洋室
広さ 34.00〜

和モダン10畳(1階/ツインベッド/マッサージチェア/禁煙)

お部屋詳細

【2014年OPEN】
■椅子座の和モダンルーム ■マッサージチェア付
■全室禁煙 ■お子様×
■1階 ■畳10帖にツインベッド設置
■シモンズ社製ベッド ■空気清浄機
■WiFi ■Netflix(無料映画) ■Alexa(Aiスピーカー)
■全室部屋風呂なし
【思ってた宿と違うとならないようお伝えしたい大切な事 】
当館にある2つの大浴場は、それぞれが貸切風呂となり、男女別の浴場はございません
2つの貸切風呂を6組の皆さまでご利用いただく為、場合によっては待ち時間が発生いたします
好きな時間に入浴する事ができないと不快の念をお掛けする場合がございますので予めご了承ください
<周辺観光>
・黒部峡谷鉄道トロッコ電車 … 車47分
・立山黒部アルペンルート( 立山駅 ) … 車66分
・魚津水族館&ミラージュランド … 車20分
・海の駅「蜃気楼」…車20分

101楓 1階和室10畳

101 楓 1階の和室10畳

タイプ 和室
広さ 26.00〜

和モダン11畳(2階/ツインベッド/禁煙)

お部屋詳細

【2014年OPEN】
■床座の和モダンルーム ■全室禁煙 ■お子様×
■2階(エレベーターはありません)
■畳5帖+ベッド間
■シモンズ社製ベッド ■空気清浄機
■WiFi ■Netflix(無料映画) ■Alexa(Aiスピーカー)
■全室部屋風呂なし
【思ってた宿と違うとならないようお伝えしたい大切な事 】
当館にある2つの大浴場は、それぞれが貸切風呂となり、男女別の浴場はございません
2つの貸切風呂を6組の皆さまでご利用いただく為、場合によっては待ち時間が発生いたします
好きな時間に入浴する事ができないと不快の念をお掛けする場合がございますので予めご了承ください
<周辺観光>
・黒部峡谷鉄道トロッコ電車 … 車47分
・立山黒部アルペンルート( 立山駅 ) … 車66分
・魚津水族館&ミラージュランド … 車20分
・海の駅「蜃気楼」…車20分

山里の風景が楽しめる部屋

203 椿 2階の和モダン11.5畳

タイプ 和洋室
広さ 31.00〜