最新!【グランドニッコー淡路】
人気オススメのお部屋をチェック!

海、山、空に囲まれた、神戸に程近いアイランドリゾート。
ホテルのある「淡路夢舞台」は、人と自然と文化が交流する次世代リゾート空間として、建築家 安藤忠雄氏が設計・グランドデザインを手がけた施設です。

このページは、アフィリエイトリンクを含んでいます。

デラックスツイン【禁煙】

お部屋詳細

光があふれ、リゾートらしい開放感に満ちた室内。すべてのお部屋がバルコニー付きで、風を感じながらのひとときをお楽しみいただけます。
※バルコニー付
※上下セパレートタイプのナイトウェア
※高速インターネット接続無料(パソコンは、お客様ご自身でご用意ください)
※バスルームは、洗面、トイレ、バスルームをそれぞれ独立。バスルームはご家庭のお風呂のように洗い場付です。
※ベビーベッドの貸し出し無料。ご予約時にご要望ください。(予約状況にてご利用頂けない場合もございます。予めご了承ください。)

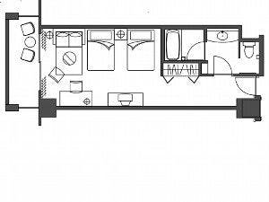
デラックスルーム 間取り図(ツイン)

客室バスルーム

タイプ ツイン
広さ 42.00〜
+ プランを見る

和室【禁煙】

お部屋詳細

二間続きのスイートタイプで和の寛ぎをお楽しみください。ヒノキのお風呂で日頃の疲れも取れることでしょう。
※2020年4月より禁煙化にいたします。

和室

和室 浴室 (イメージ)

和室 間取り図

タイプ 和室
広さ 64.00〜

ジュニアスイート【禁煙】

お部屋詳細

光があふれ、リゾートらしい開放感に満ちた室内。すべてのお部屋がバルコニー付きで、風を感じながらのひとときをお楽しみいただけます。
※バルコニー付
※上下セパレートタイプのナイトウェア
※高速インターネット接続無料(パソコンは、お客様ご自身でご用意ください)
※バスルームは、洗面、トイレ、バスルームをそれぞれ独立。バスルームはご家庭のお風呂のように洗い場付です。
※ベビーベッドの貸し出し無料。ご予約時にご要望ください。(予約状況にてご利用頂けない場合もございます。予めご了承ください。)

ジュニアスイート リビング

タイプ ダブル
広さ 55.00〜

エグゼクティブスイートダブル【禁煙】

お部屋詳細

光があふれ、リゾートらしい開放感に満ちた室内。すべてのお部屋がバルコニー付きで、風を感じながらのひとときをお楽しみいただけます。
※バルコニー付
※上下セパレートタイプのナイトウェア
※高速インターネット接続無料(パソコンは、お客様ご自身でご用意ください)
※バスルームは、洗面、トイレ、バスルームをそれぞれ独立。バスルームはご家庭のお風呂のように洗い場付です。
※ベビーベッドの貸し出し無料。ご予約時にご要望ください。(予約状況にてご利用頂けない場合もございます。予めご了承ください。)

エグゼクティブスイート ダブル

タイプ ダブル
広さ 92.00〜

エグゼクティブスイートツイン【禁煙】

お部屋詳細

光があふれ、リゾートらしい開放感に満ちた室内。すべてのお部屋がバルコニー付きで、風を感じながらのひとときをお楽しみいただけます。
※バルコニー付
※上下セパレートタイプのナイトウェア
※高速インターネット接続無料(パソコンは、お客様ご自身でご用意ください)
※バスルームは、洗面、トイレ、バスルームをそれぞれ独立。バスルームはご家庭のお風呂のように洗い場付です。
※ベビーベッドの貸し出し無料。ご予約時にご要望ください。(予約状況にてご利用頂けない場合もございます。予めご了承ください。)

エグゼクティブスイート ツイン

タイプ ツイン
広さ 92.00〜

デラックスツイン2部屋【禁煙】コネクティング

お部屋詳細

※隣り合う連続の2部屋(デラックスツイン2部屋)をご用意
光があふれ、リゾートらしい開放感に満ちた室内。すべてのお部屋がバルコニー付きで、風を感じながらのひとときをお楽しみいただけます
※バルコニー付
※上下セパレートタイプのナイトウェア
※高速インターネット接続無料(パソコンは、お客様ご自身でご用意ください)
※バスルームは、洗面、トイレ、バスルームをそれぞれ独立。バスルームはご家庭のお風呂のように洗い場付です。
※ベビーベッドの貸し出し無料。ご予約時にご要望ください。(予約状況にてご利用頂けない場合もございます。予めご了承ください。)

デラックスルーム 間取り図(ツイン)

コネクティングルーム内ドア

タイプ 設定なし
広さ 42.00〜

プレシャスフロア デラックスツイン【禁煙】パノラミックビュー

お部屋詳細

光があふれ、リゾートらしい開放感に満ちた室内。すべてのお部屋がバルコニー付きで、風を感じながらのひとときをお楽しみいただけます。人気の明石海峡公園側の8階以上確約の部屋タイプです。
※バルコニー付
※上下セパレートタイプのナイトウェア
※高速インターネット接続無料(パソコンは、お客様ご自身でご用意ください)
※バスルームは、洗面、トイレ、バスルームをそれぞれ独立。バスルームはご家庭のお風呂のように洗い場付です。
※ベビーベッドの貸し出し無料。ご予約時にご要望ください。(予約状況にてご利用頂けない場合もございます。予めご了承ください。)

プレシャスフロアデラックスツイン

プレシャスデラックスツイン(平面図)

客室バルコニーから外をのぞむ

タイプ ツイン
広さ 42.00〜

プレシャスフロア ラグジュアリーダブル【禁煙】 パノラミック

お部屋詳細

光があふれ、リゾートらしい開放感に満ちた室内。すべてのお部屋がバルコニー付きで、風を感じながらのひとときをお楽しみいただけます。パノラミックビューとは、人気の明石海峡公園側の8階以上確約の部屋タイプです。
※バルコニー付
※上下セパレートタイプのナイトウェア
※高速インターネット接続無料(パソコンは、お客様ご自身でご用意ください)
※バスルームは、洗面、トイレ、バスルームをそれぞれ独立。バスルームはご家庭のお風呂のように洗い場付です。
※ベビーベッドの貸し出し無料。ご予約時にご要望ください。(予約状況にてご利用頂けない場合もございます。予めご了承ください。)

ラグジュアリーDBプレシャスパノラミック

プレシャスラグジュアリーダブル(平面図)

客室バルコニーから外をのぞむ

タイプ ダブル
広さ 46.00〜

スーペリアダブル【禁煙】

お部屋詳細

光があふれ、リゾートらしい開放感に満ちた室内。すべてのお部屋がバルコニー付きで、風を感じながらのひとときをお楽しみいただけます。
※バルコニー付
※上下セパレートタイプのナイトウェア
※高速インターネット接続無料(パソコンは、お客様ご自身でご用意ください)
※バスルームは、洗面、トイレ、バスルームをそれぞれ独立。バスルームはご家庭のお風呂のように洗い場付です。
※ベビーベッドの貸し出し無料。ご予約時にご要望ください。(予約状況にてご利用頂けない場合もございます。予めご了承ください。)

スーペリア ダブル

客室バスルーム

ホテル客室バルコニー(イメージ)

タイプ ダブル
広さ 37.00〜

デラックスダブル【禁煙】

お部屋詳細

光があふれ、リゾートらしい開放感に満ちた室内。すべてのお部屋がバルコニー付きで、風を感じながらのひとときをお楽しみいただけます。
※バルコニー付
※上下セパレートタイプのナイトウェア
※高速インターネット接続無料(パソコンは、お客様ご自身でご用意ください)
※バスルームは、洗面、トイレ、バスルームをそれぞれ独立。バスルームはご家庭のお風呂のように洗い場付です。
※ベビーベッドの貸し出し無料。ご予約時にご要望ください。(予約状況にてご利用頂けない場合もございます。予めご了承ください。)

デラックス ダブル

客室バスルーム

ホテル客室バルコニー(イメージ)

タイプ ダブル
広さ 42.00〜
+ プランを見る

プレシャスフロア デラックスツイン【禁煙】

お部屋詳細

光があふれ、リゾートらしい開放感に満ちた室内。洋室すべてのお部屋がバルコニー付きで、風を感じながらのひとときをお楽しみいただけます。
※バルコニー付
※上下セパレートタイプのナイトウェア
※高速インターネット接続無料(パソコンは、お客様ご自身でご用意ください)
※バスルームは、洗面、トイレ、バスルームをそれぞれ独立。バスルームはご家庭のお風呂のように洗い場付です。
※ベビーベッドの貸し出し無料。ご予約時にご要望ください。(予約状況にてご利用頂けない場合もございます。予めご了承ください。)

プレシャスフロアデラックスツイン

プレシャスデラックスツイン(平面図)

客室バスルームプレシャスフロア

タイプ ツイン
広さ 42.00〜

プレシャスフロア デラックスダブル【禁煙】

お部屋詳細

光があふれ、リゾートらしい開放感に満ちた室内。洋室すべてのお部屋がバルコニー付きで、風を感じながらのひとときをお楽しみいただけます。
※バルコニー付
※上下セパレートタイプのナイトウェア
※高速インターネット接続無料(パソコンは、お客様ご自身でご用意ください)
※バスルームは、洗面、トイレ、バスルームをそれぞれ独立。バスルームはご家庭のお風呂のように洗い場付です。
※ベビーベッドの貸し出し無料。ご予約時にご要望ください。(予約状況にてご利用頂けない場合もございます。予めご了承ください。)

プレシャスデラックスダブル(平面図)

客室バスルームプレシャスフロア

タイプ ダブル
広さ 42.00〜

スーペリアツイン【禁煙】

お部屋詳細

光があふれ、リゾートらしい開放感に満ちた室内。すべてのお部屋がバルコニー付きで、風を感じながらのひとときをお楽しみいただけます。
※バルコニー付
※上下セパレートタイプのナイトウェア
※高速インターネット接続無料(パソコンは、お客様ご自身でご用意ください)
※バスルームは、洗面、トイレ、バスルームをそれぞれ独立。バスルームはご家庭のお風呂のように洗い場付です。
※ベビーベッドの貸し出し無料。ご予約時にご要望ください。(予約状況にてご利用頂けない場合もございます。予めご了承ください。)

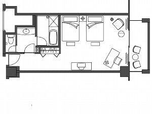
スーペリアツイン 間取り図

客室バスルーム

タイプ ツイン
広さ 39.00〜

6・7階 スーペリアツイン【禁煙】パノラミックビュー

お部屋詳細

スタンダードな広さのお部屋で、6~7階の東側(淡路島国営明石海峡公園側)に設定がございます。どこまでも青く澄んだ海と、壮大な緑の大地の大パノラマがお楽しみいただけます。
※バルコニー付
※上下セパレートタイプのナイトウェア
※高速インターネット接続無料(パソコンは、お客様ご自身でご用意ください)
※バスルームは、洗面、トイレ、バスルームをそれぞれ独立。バスルームはご家庭のお風呂のように洗い場付です。
※ベビーベッドの貸し出し無料。ご予約時にご要望ください。(予約状況にてご利用頂けない場合もございます。予めご了承ください。)

スーペリアツイン 間取り図

客室バスルーム

タイプ ツイン
広さ 39.00〜

6・7階 デラックスツイン【禁煙】パノラミックビュー

お部屋詳細

スーペリアルームより少し広めのお部屋で、6~7階の東側(淡路島国営明石海峡公園側)に設定がございます。どこまでも青く澄んだ海と、壮大な緑の大地の大パノラマがお楽しみいただけます。
※バルコニー付
※上下セパレートタイプのナイトウェア
※高速インターネット接続無料(パソコンは、お客様ご自身でご用意ください)
※バスルームは、洗面、トイレ、バスルームをそれぞれ独立。バスルームはご家庭のお風呂のように洗い場付です。
※ベビーベッドの貸し出し無料。ご予約時にご要望ください。(予約状況にてご利用頂けない場合もございます。予めご了承ください。)

デラックスルーム 間取り図(ツイン)

客室バスルーム

タイプ ツイン
広さ 42.00〜

プレシャスフロア スーペリアダブル【禁煙】

お部屋詳細

スタンダードタイプのお部屋で、8階の西側(国際会議場側)に設定がございます。
※バルコニー付
※上下セパレートタイプのナイトウェア
※高速インターネット接続無料(パソコンは、お客様ご自身でご用意ください)
※バスルームは、洗面、トイレ、バスルームをそれぞれ独立。バスルームはご家庭のお風呂のように洗い場付です。
※ベビーベッドの貸し出し無料。ご予約時にご要望ください。(予約状況にてご利用頂けない場合もございます。予めご了承ください。)

プレシャスフロア スーペリアダブル

プレシャススーペリアダブル(平面図)

客室バスルーム

タイプ ダブル
広さ 37.00〜

プレシャスフロア デラックスハリウッドツイン【禁煙】

お部屋詳細

スーペリアルームより少し広めのお部屋で、8~9階の西側(国際会議場側)に設定がございます。
2台のベッドが横並びに並んだ部屋タイプです。
※バルコニー付
※上下セパレートタイプのナイトウェア
※高速インターネット接続無料(パソコンは、お客様ご自身でご用意ください)
※バスルームは、洗面、トイレ、バスルームをそれぞれ独立。バスルームはご家庭のお風呂のように洗い場付です。
※ベビーベッドの貸し出し無料。ご予約時にご要望ください。(予約状況にてご利用頂けない場合もございます。予めご了承ください。)

プレシャスデラックスハリウッドツイン

客室バスルームプレシャスフロア

ホテル客室バルコニー(イメージ)

タイプ ツイン
広さ 42.00〜

お部屋タイプお任せ客室【禁煙】

お部屋詳細

こちらのお部屋タイプは当日のお楽しみ。ダブル・ツイン・和室のいずれかとなります。事前のご指定は承れませんのでご了承ください。

タイプ 設定なし
広さ

ラグジュアリーツイン【禁煙】

お部屋詳細

リゾートステイをより快適に、心地よさを追求したお部屋。
光があふれ、リゾートらしい開放感に満ちた室内。洋室全てのお部屋がバルコニー付きで、風を感じながらのひとときをお楽しみいただけます。
※バルコニー付
※上下セパレートタイプのナイトウェア
※高速インターネット接続無料(パソコンは、お客様ご自身でご用意ください)
※バスルームは、洗面、トイレ、バスルームをそれぞれ独立。バスルームはご家庭のお風呂のように洗い場付です。
※ベビーベッドの貸し出し無料。ご予約時にご要望ください。(予約状況にてご利用頂けない場合もございます。予めご了承ください。)

ラグジュアリー ツイン

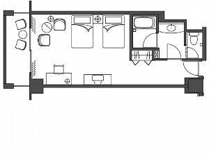
ラグジュアリーツイン 間取り図

客室バスルーム

タイプ ツイン
広さ 46.00〜

ラグジュアリーダブル【禁煙】

お部屋詳細

リゾートステイをより快適に、心地よさを追求したお部屋。
光があふれ、リゾートらしい開放感に満ちた室内。洋室全てのお部屋がバルコニー付きで、風を感じながらのひとときをお楽しみいただけます。
※バルコニー付
※上下セパレートタイプのナイトウェア
※高速インターネット接続無料(パソコンは、お客様ご自身でご用意ください)
※バスルームは、洗面、トイレ、バスルームをそれぞれ独立。バスルームはご家庭のお風呂のように洗い場付です。
※ベビーベッドの貸し出し無料。ご予約時にご要望ください。(予約状況にてご利用頂けない場合もございます。予めご了承ください。)

ラグジュアリー ダブル

客室バスルーム

ホテル客室バルコニー(イメージ)

タイプ ダブル
広さ 46.00〜

デラックスハリウッドツイン【禁煙】

お部屋詳細

光があふれ、リゾートらしい開放感に満ちた室内。すべてのお部屋がバルコニー付きで、風を感じながらのひとときをお楽しみいただけます。
※バルコニー付
※上下セパレートタイプのナイトウェア
※高速インターネット接続無料(パソコンは、お客様ご自身でご用意ください)
※バスルームは、洗面、トイレ、バスルームをそれぞれ独立。バスルームはご家庭のお風呂のように洗い場付です。
※ベビーベッドの貸し出し無料。ご予約時にご要望ください。(予約状況にてご利用頂けない場合もございます。予めご了承ください。)

デラックスハリウッドツイン

客室バスルーム

ホテル客室バルコニー(イメージ)

タイプ ツイン
広さ 42.00〜

ラグジュアリービューバスツイン【禁煙】

お部屋詳細

リゾートステイをより快適に、心地よさを追求したお部屋。
光があふれ、リゾートらしい開放感に満ちた室内。洋室全てのお部屋がバルコニー付きで、風を感じながらのひとときをお楽しみいただけます。
※バルコニー付
※上下セパレートタイプのナイトウェア
※高速インターネット接続無料(パソコンは、お客様ご自身でご用意ください)
※バスルームは、洗面、トイレ、バスルームをそれぞれ独立。バスルームはご家庭のお風呂のように洗い場付です。
※ベビーベッドの貸し出し無料。ご予約時にご要望ください。(予約状況にてご利用頂けない場合もございます。予めご了承ください。)

ラグジュアリー ツイン

客室バスルーム

ホテル客室バルコニー(イメージ)

タイプ ツイン
広さ 47.00〜

ラグジュアリービューバスダブル【禁煙】

お部屋詳細

リゾートステイをより快適に、心地よさを追求したお部屋。
光があふれ、リゾートらしい開放感に満ちた室内。洋室全てのお部屋がバルコニー付きで、風を感じながらのひとときをお楽しみいただけます。
※バルコニー付
※上下セパレートタイプのナイトウェア
※高速インターネット接続無料(パソコンは、お客様ご自身でご用意ください)
※バスルームは、洗面、トイレ、バスルームをそれぞれ独立。バスルームはご家庭のお風呂のように洗い場付です。
※ベビーベッドの貸し出し無料。ご予約時にご要望ください。(予約状況にてご利用頂けない場合もございます。予めご了承ください。)

ラグジュアリーダブルビューバス

客室バスルーム

ホテル客室バルコニー(イメージ)

タイプ ダブル
広さ 47.00〜

プレシャスフロア スーペリアツイン【禁煙】

お部屋詳細

※バルコニー付
※上下セパレートタイプのナイトウェア
※高速インターネット接続無料(パソコンは、お客様ご自身でご用意ください)
※バスルームは、洗面、トイレ、バスルームをそれぞれ独立。バスルームはご家庭のお風呂のように洗い場付です。
※ベビーベッドの貸し出し無料。ご予約時にご要望ください。(予約状況にてご利用頂けない場合もございます。予めご了承ください。)

プレシャススーペリアツイン(平面図)

客室バスルーム

タイプ ツイン
広さ 39.00〜

プレシャスフロア ラグジュアリーツイン【禁煙】パノラミック

お部屋詳細

光があふれ、リゾートらしい開放感に満ちた室内。すべてのお部屋がバルコニー付きで、風を感じながらのひとときをお楽しみいただけます。人気の明石海峡公園側の8階以上確約の部屋タイプです。
※バルコニー付
※上下セパレートタイプのナイトウェア
※高速インターネット接続無料(パソコンは、お客様ご自身でご用意ください)
※バスルームは、洗面、トイレ、バスルームをそれぞれ独立。バスルームはご家庭のお風呂のように洗い場付です。
※ベビーベッドの貸し出し無料。ご予約時にご要望ください。(予約状況にてご利用頂けない場合もございます。予めご了承ください。)

ラグジュアリー ツイン

プレシャスラグジュアリーダブル(平面図)

客室バスルーム

タイプ ツイン
広さ 46.00〜

プレシャスフロア スーペリアツイン【禁煙】パノラミックビュー

お部屋詳細

光があふれ、リゾートらしい開放感に満ちた室内。すべてのお部屋がバルコニー付きで、風を感じながらのひとときをお楽しみいただけます。人気の明石海峡公園側の8階以上確約の部屋タイプです。
※バルコニー付
※上下セパレートタイプのナイトウェア
※高速インターネット接続無料(パソコンは、お客様ご自身でご用意ください)
※バスルームは、洗面、トイレ、バスルームをそれぞれ独立。バスルームはご家庭のお風呂のように洗い場付です。
※ベビーベッドの貸し出し無料。ご予約時にご要望ください。(予約状況にてご利用頂けない場合もございます。予めご了承ください。)

プレシャススーペリアツイン(平面図)

客室バルコニーから外をのぞむ

タイプ ツイン
広さ 39.00〜

プレシャスフロア ラグジュアリーツイン【禁煙】

お部屋詳細

光があふれ、リゾートらしい開放感に満ちた室内。洋室すべてのお部屋がバルコニー付きで、風を感じながらのひとときをお楽しみいただけます。
※バルコニー付
※上下セパレートタイプのナイトウェア
※高速インターネット接続無料(パソコンは、お客様ご自身でご用意ください)
※バスルームは、洗面、トイレ、バスルームをそれぞれ独立。バスルームはご家庭のお風呂のように洗い場付です。
※ベビーベッドの貸し出し無料。ご予約時にご要望ください。(予約状況にてご利用頂けない場合もございます。予めご了承ください。)

ラグジュアリー ツイン

プレシャスラグジュアリーツイン(平面図)

客室バスルーム

タイプ ツイン
広さ 46.00〜 462.00